'Merton Hall'

Newton Stewart. DG8 6QL

Offers Over - £499,995

Photograph of 'Merton Hall', Newton Stewart

Photograph Gallery

Please click on a thumbnail, below, to view a photograph in more detail.

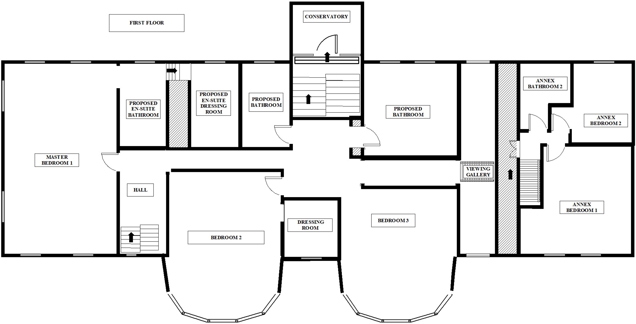
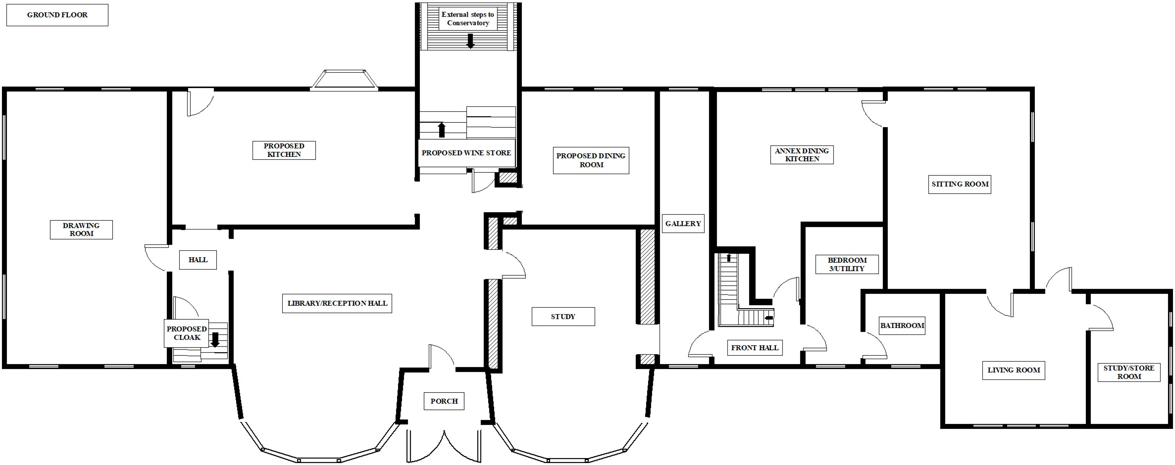
Photograph of 'Merton Hall', Newton Stewart Photograph of Merton Hall Photograph of Merton Hall 7 Photograph of Merton Hall 6 Photograph of Merton Hall 5 Photograph of Merton Hall 4 Photograph of Merton Hall 3 Photograph of Merton Hall 2 Photograph of Floorplan Ground Floor Photograph of Floorplan First Floor Photograph of Ground Floor Third Floor Photograph of Floorplan Third Floor

Property Overview


9
Bedrooms
0
En-suite
4
Public Rooms
7
Bathrooms
Yes
Garden

The earliest mention of Merton Hall is a charter granted by James III in 1477, granting the lands to John Kennedy of Blairquahan.  The building is Category B Listed and has been considerably extended and altered over the years, previously being occupied as a school.  The present owner has completely restored the annex which offers comprehensive living accommodation.  The main house offers extensive accommodation over 4 floors and has been partially and sympathetically restored including traditional fireplaces, some original plaster cornices, skirtings and door surrounds (wood panelling to be fitted). 

Just 2 miles from the town centre yet situated in a completely rural location the Manor House is approached by a tree lined driveway.  The house sits amidst acres of formal gardens, grazing land and mature deciduous woodland.  There is a former walled garden within which there has previously been planning consent for a dwellinghouse (Lot 2). Merton Hall rests in an idyllic location with panoramic views across beautiful open countryside and the Galloway Hills.  It sits in parkland to the south of the main A75 Carlisle to Stranraer road, just 1½ miles west of the town of Newton Stewart.

Newton Stewart is an attractive market town and tourist base on the banks of the river Cree, a well known game fishing river.  The area is popular for walking, cycling, bird watching, fishing and shooting.  Recreational facilities in the town include an 18 hole golf course, swimming pool, cinema, library, bowling green and tennis courts.  Being just inland of the peninsula, the coast is easily accessed to the west, east and south. Land extends to 9.71 hectares (23.99 Arces) this includes the access road, Merton Hall and the immediate surrounding garden ground, the area to the South East of Merton Hall, the area to the South West of Merton Hall and the area within lot 2.

  • Detached 17th Century Manor House
  • General plot
  • Traditional features
  • Spacious accommodation
  • Close to all major amenities
  • Large garden grounds
  • Tranquil location
  • Off road parking
  • Stunning outlook


General

It is understood that, on achieving a satisfactory price, the vendors will include fitted floor coverings throughout.

Services

Mains water and electricity. Oil fired central heating. Drainage to septic tank.

Council Tax

TBC

Energy Rating

EPC = E

Viewing

By appointment with GAP.

Entry

Negotiable.

More properties in Newton Stewart (20)


Photograph of 'Cordorcan', Newton Stewart

'Cordorcan', Newton Stewart

PLEASE NOTE: A closing date for offers has been set for 12 noon, Friday 22nd of May 2026. All formal offers should be submitted to GAP through a Scottish solicitor by the appointed time. Offers Over - £110,000