6 Bower Drive

Minnigaff. DG8 6AH

UNDER OFFER - £260,000

Photograph of 6 Bower Drive, Minnigaff

Photograph Gallery

Please click on a thumbnail, below, to view a photograph in more detail.

Photograph of 6 Bower Drive, Minnigaff Photograph of Driveway Photograph of Driveway view 2 Photograph of Hallway Photograph of Kitchen 2 Photograph of Kitchen 3 Photograph of Kitchen 4 Photograph of Kitchen Photograph of Dining Room Photograph of Utility Room 2 Photograph of Utility Room Photograph of Lounge 2 Photograph of Lounge 3 Photograph of Lounge Photograph of Study Photograph of Study 2 Photograph of Garden room Photograph of WC Photograph of Landing Photograph of Bathroom Photograph of Master Bedroom b Photograph of Master Bedroom a Photograph of En-suite Photograph of Bedroom 1 Photograph of Bedroom 1a Photograph of Pond Photograph of Rear elevation Photograph of Side Elevation 2 Photograph of Side Elevation Photograph of Garden Photograph of Front 2 Photograph of Garden 2 Photograph of Garden 3 Photograph of Garden 4 Photograph of Garden 5 Photograph of Garden 6 Photograph of Garden 7 Photograph of Garden 8 Photograph of Garden 9 Photograph of Garden 10

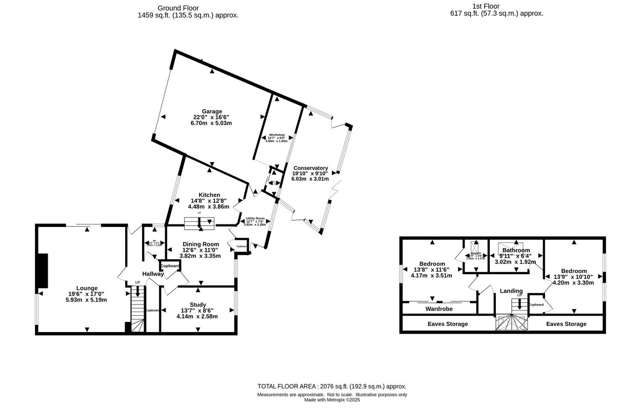
Floor Plan

Please click on the floor plan, below, to enlarge.

Floor Plan for 6 Bower Drive, Minnigaff

Property Overview


3
Bedrooms
1
En-suite
2
Public Rooms
1
Bathrooms
Yes
Garden

Settled within a well sought after location, this exceptional 3-bedroom detached family home offers the perfect blend of contemporary living and tranquillity. Boasting a spacious layout, this property is sat on a generous plot providing ample off road parking along with a spacious integral garage. Inside, the property benefits from air source under floor heating, ensuring comfort all year round. The open plan living area seamlessly flows into a spacious dining kitchen, creating a versatile space for both relaxation and entertainment.

Moving outside, the property continues to impress with its generous sized and fully enclosed rear garden grounds. The mature grounds feature a paved patio area leading to a gravel section with planting borders, creating a delightful outdoor space for al fresco dining and entertaining. A pathway leads round a feature pond with bridge access, adding a touch of serenity to the space. In addition, a garden room provides a relaxing retreat, perfect for enjoying the beauty of the surroundings. To the front of the property, spacious grounds offer ample off road parking, with a well-maintained lawn area and planting borders adding to the charm of the exterior. This property truly offers a private and tranquil setting, making it the ideal family home for those seeking a harmonious blend of indoor elegance and outdoor beauty.



General

It is understood that, on achieving a satisfactory price, the vendors will include fitted floor coverings and blinds throughout.

Services

Mains water, drainage and electricity. Air source central heating.

Council Tax

E

Energy Rating

EPC = D

Viewing

By appointment with GAP.

Entry

Negotiable.

More properties in Minnigaff (3)